10th Floor Conf Room Blinds Closed.jpg

6,500 SF to 28,000 SF AVAILABLE

STUNNING VIEWS COME STANDARD

• Full Ninth & Tenth Floor with Finest Finishes
• Convenient Visitor Parking with Free Executive Garage and Tenant Parking
• New 75 Seat Common Conference Center and New Exercise Room with Showers and Lockers
• Close Proximity to Downtown CBD, A Gathering Place & River Parks Trails with Commanding Views of the Arkansas River and Tulsa
• Impressive Granite & Mahogany Two-Story Atrium Lobby Entrance with Circle Drive Entrance
• 24 Hour Backup Power Generators
• Shopping/Restaurants Nearby at 19th & Boston, Cherry Street, Utica Square and Brookside
• Professional On-site Management & Ownership

RWS_7719 - Copysmall.jpg

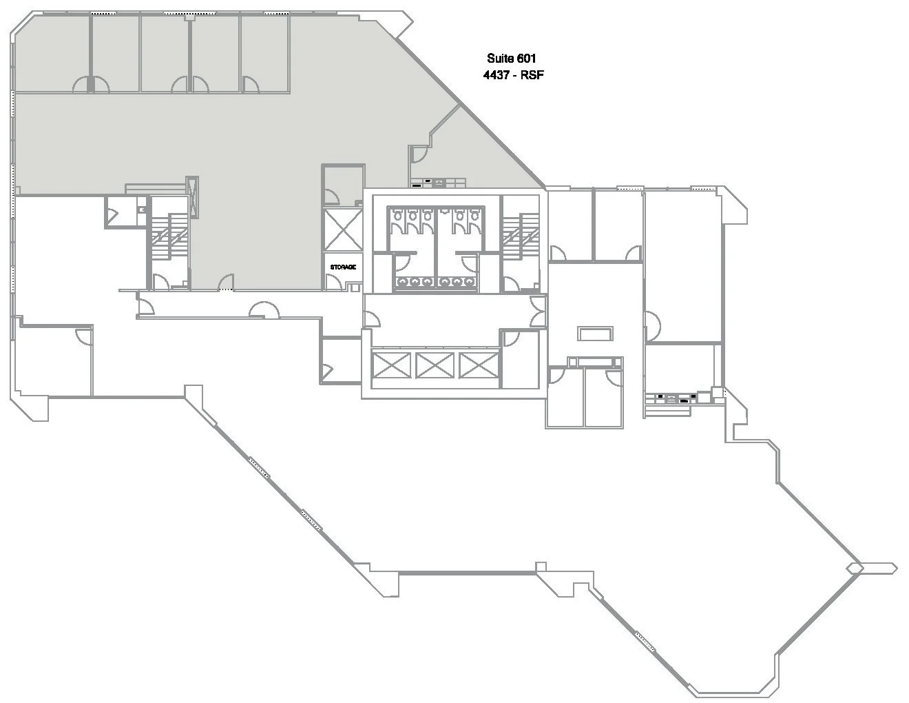
FLEXIBLE FLOOR PLAN

The 6th floor has a flexible floor plan that can be customized to fit your business needs.

Download Fact Sheet